Homeland and Vocation
As the former industrial powerhouse, Brooklyn's Greenpoint neighborhood is characterized by its bustling workplaces and numerous industrial relics, which form the city's foundational backdrop. Throughout the city's evolution, many factory buildings have been preserved, while newly developed residential areas and internal courtyards simultaneously create comfortable street spaces and leisure areas for residents. These elements present a certain degree of contrast. Unlike some central districts, Greenpoint faces Manhattan across the East River. The site is strategically located along the waterfront, where newly constructed high-rises are shaping a new waterfront skyline. This design primarily focuses on bridging the geographical and historical gaps that have emerged within the city.
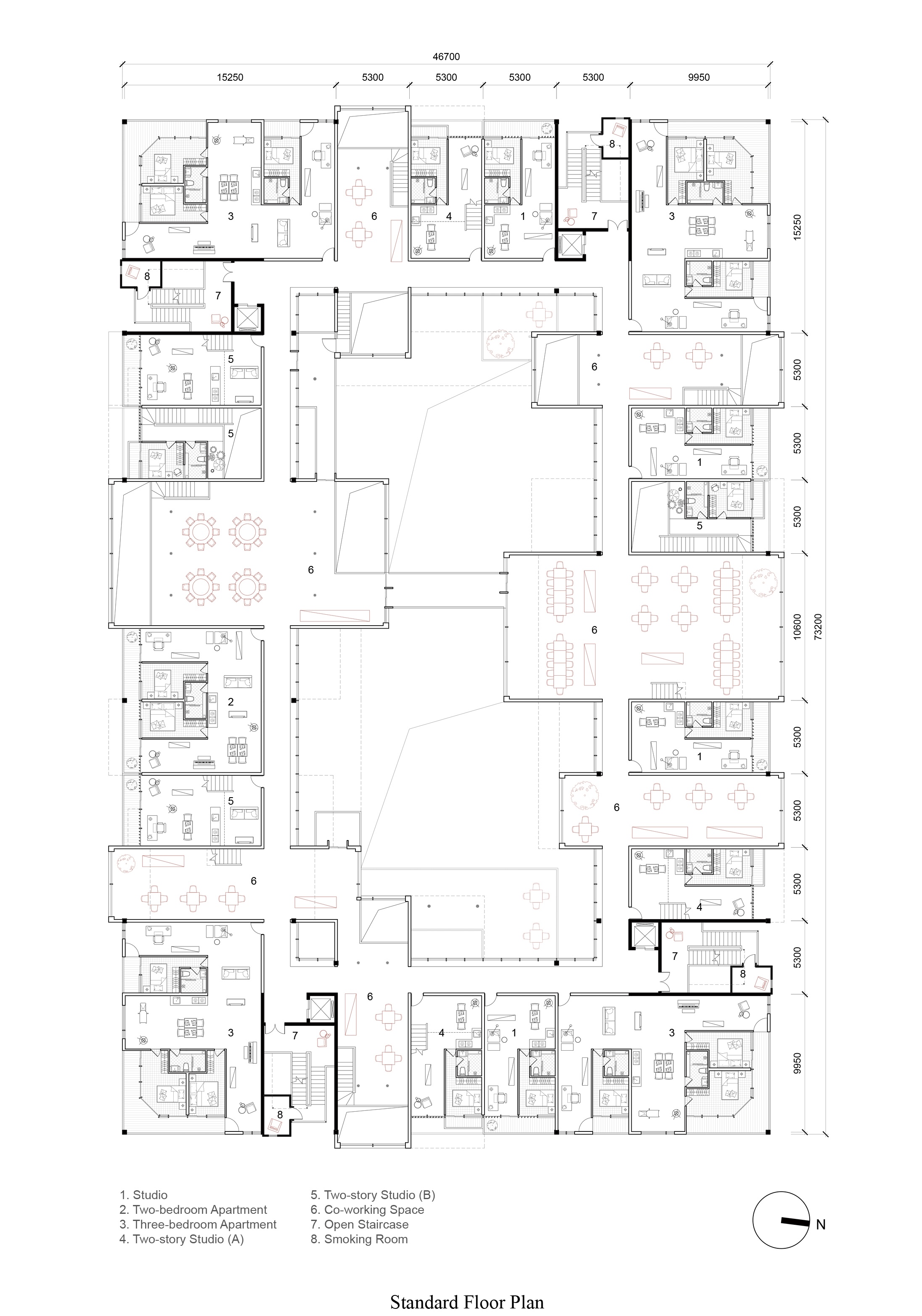
Focusing on the evolving relationship between residential and work functions, and in response to the development of post-pandemic office models—namely the emergence of hybrid work arrangements—communities that are autonomous, self-sustaining, and incorporate work modules will become community development models conducive to home-based work. In my design, I explore how to redefine people's lives by segregating work and residence, thereby establishing new living spaces. Additionally, by layering residential modules with consistent logic but varying expressions, shared workspaces are created on a larger scale to enhance community interaction and work efficiency. Simultaneously, the city's architectural history is integrated into the design, facilitating transitions between low-rise and high-rise structures, bridging industrial facilities and residential areas, and connecting different communities. Simultaneously, it establishes two distinct types of community social spaces: 'public open spaces' and 'private open spaces'.














